최근 사무실 리모델링이 많은 기업에서 주목받고 있습니다. 이는 단순히 공간을 새롭게 꾸미는 것을 넘어, 직원들의 생산성과 만족도를 높이는 중요한 요소로 작용하고 있습니다. 이번 포스트에서는 사무실 오피스 리모델링 인테리어 비용 견적서 체크리스트에 대해 자세히 알아보겠습니다.

사무실 환경은 직원들의 업무 효율성에 큰 영향을 미칩니다. 쾌적하고 현대적인 공간은 직원들의 창의성을 자극하고, 협업을 촉진하는 데 도움을 줍니다. 또한, 고객과의 첫 인상에서도 중요한 역할을 하므로, 리모델링은 단순한 선택이 아닌 필수로 여겨지고 있습니다.
리모델링 비용의 주요 요소
리모델링 비용은 여러 요소에 따라 달라집니다. 일반적으로 고려해야 할 요소는 다음과 같습니다:
- 면적 : 사무실의 크기에 따라 비용이 달라집니다. 평당 비용이 정해져 있으므로, 면적이 클수록 총 비용이 증가합니다.
- 디자인 : 고급스러운 디자인을 원할 경우, 추가 비용이 발생할 수 있습니다.
- 자재 : 사용되는 자재의 종류에 따라 비용이 크게 차이납니다. 예를 들어, 고급 목재나 유리 자재는 일반 자재보다 비쌉니다.
- 인건비 : 시공업체의 인건비도 중요한 요소입니다. 숙련된 인력을 고용할 경우, 비용이 증가할 수 있습니다.
이러한 요소들을 종합적으로 고려하여 견적서를 작성해야 합니다.

서울 사무실 인테리어 비용 52평 견적서 오픈, 광화문 위치
Good design in honesty 좋은 디자인은 정직입니다. 모든 인테리어 리모델링 비용에 대한 견적서를 상세하...
blog.naver.com
견적서 작성 시 체크리스트
견적서를 작성할 때는 다음의 체크리스트를 참고하는 것이 좋습니다:
- 업체 선정 : 여러 업체에서 견적을 받아 비교합니다.
- 세부 항목 확인 : 각 항목의 비용이 명확히 기재되어 있는지 확인합니다.
- 추가 비용 : 예상치 못한 추가 비용이 발생할 수 있으므로, 이에 대한 조항이 포함되어 있는지 확인합니다.
- 공사 기간 : 공사 완료 예상 기간을 명시해야 합니다.
- 보증 및 사후 관리 : 공사 후 보증 기간과 사후 관리에 대한 내용도 체크해야 합니다.
이러한 체크리스트를 통해 보다 정확한 견적서를 받을 수 있습니다.

맘대로 신혼집리모델링 2화_업체&견적서 대공개, 오늘의집 고수들의 꿀팁 | 라이프스타일 슈퍼앱
맘대로 신혼집 리모델링 1화에서 공사별 공사범위를 확실히 정했다면 그에 맞는 업체를 찾아야겠죠? 이번에는 공정별 업체선택 방법부터 견적서까지 최대한 자세히 소개해드릴게요! (※스
ohou.se
비용 절감 팁
리모델링 비용을 절감할 수 있는 몇 가지 팁을 소개합니다:
- 기존 자재 재활용 : 기존의 가구나 자재를 재활용하면 비용을 크게 줄일 수 있습니다.
- DIY 작업 : 간단한 작업은 직접 수행하여 인건비를 절감할 수 있습니다.
- 비수기 공사 : 공사 비수기에 진행하면 할인 혜택을 받을 수 있습니다.
- 업체와의 협상 : 여러 업체에서 견적을 받아 경쟁을 유도하면 가격을 낮출 수 있습니다.
이러한 방법들을 통해 예산을 효율적으로 관리할 수 있습니다.

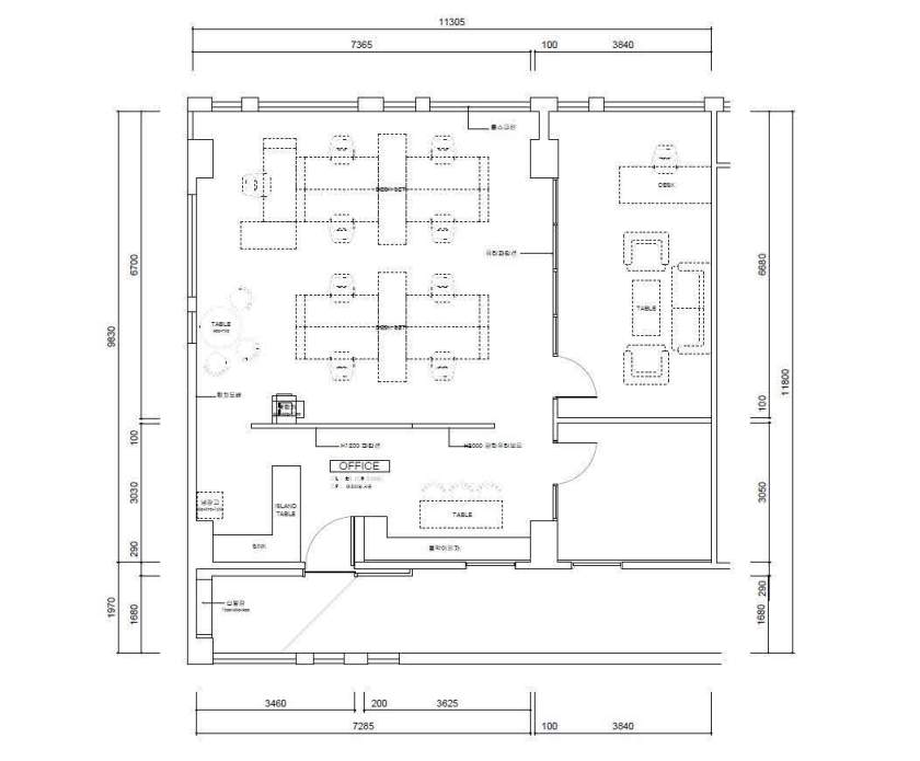
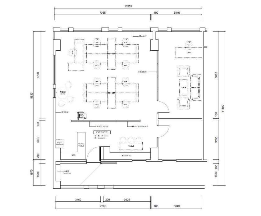
40평 사무실인테리어 비용 견적서 - 사무실인테리어 디자인 공사 비용견적 플랫폼
사무실인테리어 견적서 및 비용
916er.com
사무실 인테리어 트렌드
현재 사무실 인테리어에서 주목받고 있는 트렌드는 다음과 같습니다:
- 오픈형 공간 : 협업을 촉진하는 오픈형 공간이 인기를 끌고 있습니다.
- 자연 친화적 디자인 : 식물과 자연광을 활용한 디자인이 직원들의 스트레스를 줄이는 데 도움을 줍니다.
- 다양한 작업 공간 : 개인 작업 공간과 협업 공간을 구분하여 다양한 업무 스타일을 지원합니다.
이러한 트렌드를 반영한 인테리어는 직원들의 만족도를 높이는 데 기여합니다.

사무실 인테리어 비용 및 체크리스트
Customize + Hit 고객이 원하는 대로 구현하다 + 히트, 성공 = 고객의 니즈에 맞는 공간을 통해 성...
blog.naver.com
사례 연구: 성공적인 리모델링 프로젝트
한 기업의 리모델링 사례를 살펴보겠습니다. 이 기업은 기존의 폐쇄형 사무실을 오픈형으로 변경하였고, 직원들의 의견을 반영하여 디자인을 구성했습니다. 결과적으로 직원들의 생산성이 20% 증가하였고, 고객과의 소통도 원활해졌습니다. 이러한 성공적인 사례는 리모델링의 중요성을 잘 보여줍니다.

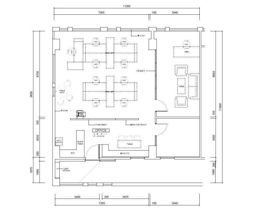
40평 사무실인테리어 비용 견적서 - 사무실인테리어 디자인 공사 비용견적 플랫폼
사무실인테리어 견적서 및 비용
916er.com
마무리 및 추가 정보
사무실 리모델링은 단순한 공간 변화가 아니라, 기업의 문화와 생산성에 큰 영향을 미치는 중요한 과정입니다. 견적서를 작성할 때는 위의 체크리스트를 참고하고, 비용 절감 팁을 활용하여 효율적인 리모델링을 진행하시기 바랍니다. 추가적인 정보가 필요하시다면 관련 블로그나 전문가의 조언을 참고하는 것도 좋은 방법입니다.
이 포스트가 사무실 리모델링을 계획하는 데 도움이 되길 바랍니다.
태그
#사무실리모델링 #인테리어비용 #견적서체크리스트 #비용절감 #사무실인테리어 #리모델링팁
자료 참고
[1] NAVER - 사무실 인테리어 비용 및 체크리스트 - 네이버블로그 (https://blog.naver.com/jenterprise123/223460799457?fromRss=true&trackingCode=rss)
[2] 네이버 블로그 - 사무실 인테리어 전 필수 체크리스트 TOP6 - 네이버 블로그 (https://m.blog.naver.com/fast_five_/222303974425)
[3] 큐플레이스 - 상가 인테리어 비용, 견적 | 상업공간 업종 별 안내 (https://qplace.kr/guide/%EC%83%81%EA%B0%80-%EC%9D%B8%ED%85%8C%EB%A6%AC%EC%96%B4-%EB%B9%84%EC%9A%A9-%EA%B2%AC%EC%A0%81-%7C-%EC%83%81%EC%97%85%EA%B3%B5%EA%B0%84-%EC%97%85%EC%A2%85-%EB%B3%84-%EC%95%88%EB%82%B4)
[4] 브런치스토리 - 10화 인테리어 공사 후 확인해야 하는 9가지 체크리스트 (https://brunch.co.kr/@@gdqr/15)